Nhận ký gửi mua bán cho thuê căn hộ Galaxy 9 Quận 4. Liên hệ PKD: 0903.665.877
Ngày đăng: 18-02-2014
7873 lượt xem

HOTLINE: 0903.665.877
- Chủ đầu tư: NovaLand
- Nhà thầu chính: Cty Hòa Bình
- Diện tích đất: 6.227.9 m2
- Tầng cao: 20 tầng
- Mật độ xây dựng: 39,7%
- Gồm 2 Block căn hộ với 14căn/tầng; 4 thang máy/block
- Khu thương mại: tầng 2 và 3
- Khu căn hộ: gồm 464 căn (từ tầng 4 đến tầng 20).
- Giao nhà hoàn thiện: 15/12/2015

Tọa lạc tại số 9 đường Nguyễn Khoái, phường 1, quận 4. Căn hộ Galaxy 9 cách đường Bến Vân Đồn chỉ 300m. Từ căn hộ Galaxy 9 rất thuận tiện đi đến các trung tâm thương mại, trung tâm tài chính – ngân hàng và dịch vụ của Quận 1, Quận 5, Quận 7, Quận 2 và Quận 8…

- Chỉ 3 phút để đi đến trung tâm tài chính Quận 1 – chợ Bến Thành qua cầu Calmette
- Chỉ 1 phút đến trung tâm thương mại Quận 5 – chợ An Đông qua cầu Nguyễn Văn Cừ
- Chỉ 10 phút di chuyển đến Khu dân cư Nam Sài Gòn - Phú Mỹ Hưng
- Chỉ 15 phút qua hầm Thủ Thiêm để đến trung tâm hành chính Quận 2
- Tại tầng 03 của căn hộ là khuôn viên hồ bơi với độ cao trần trên 9m, trang trí phía trên là một dãy những ngôi sao như một dải ngân hà, bạn như thể -đang lạc vào một thế giới lung linh, huyền diệu của riêng mình.
- Bên cạnh hồ bơi là khu BBQ, là nơi tổ chức những bữa tiệc ấm cúng cùng gia đình hay hội bạn bè thân thiết.
- Nếu bạn yêu thích thể thao. Phòng tập Gym với những dụng cụ chuyên nghiệp và hiện đại sẽ giúp bạn có được vóc dáng và sức khỏe mà mình hằng mong muốn.
- Bên cạnh đó, với khuôn viên cây xanh hơn 1.100m2 mang đến cho bạn và gia đình một không gian sống xanh, mát mỗi ngày và là nơi bách bộ tuyệt vời cho những ai yêu thích môn thể thao đi bộ.

- Ngoài các tiện ích trên, tại căn hộ Galaxy 9 còn có siêu thị tiện ích, khu vui chơi trẻ em,…

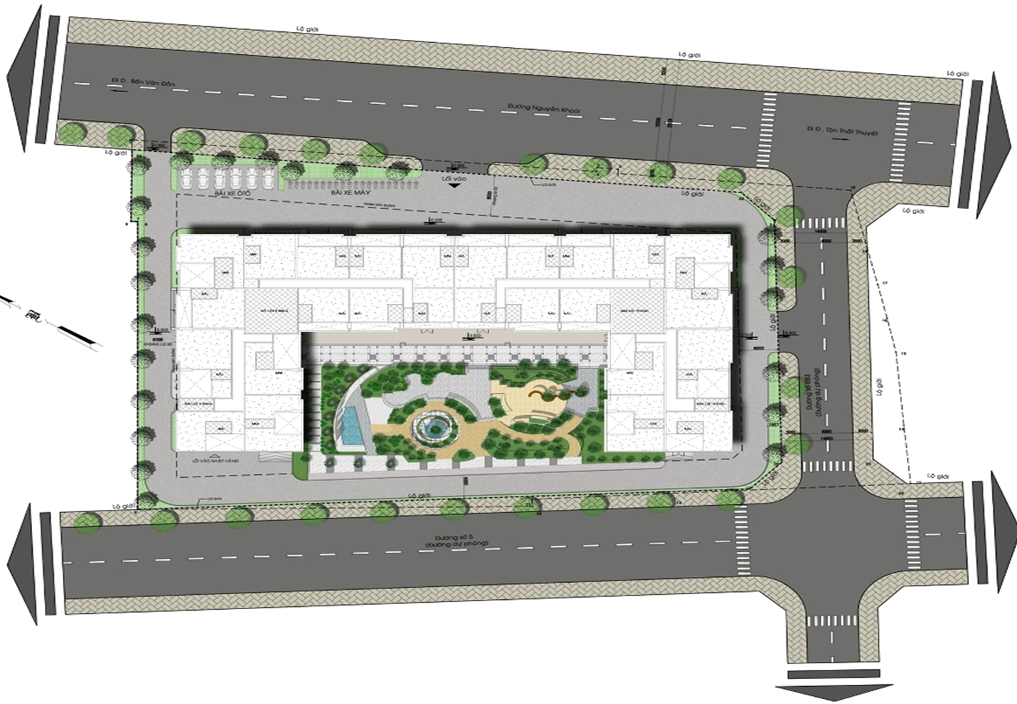
Sơ đồ mặt bằng tầng trệt căn hộ Galaxy 9

Sơ đồ mặt bằng tầng 2 khu thương mại Galaxy 9

Sơ đồ mặt bằng tầng 3 khu thương mại Galaxy 9

Sơ đồ mặt bằng tầng 4 và 5 căn hộ Galaxy 9
Tầng 4 & 5: có 11 căn.
- 1 phòng ngủ: 48,7m2; 50,2m2.
- 2 phòng ngủ: 57,2m2; 65,6m2; 69m2; 70m2; 70,7m2.
- 3 phòng ngủ: 87,5m2; 93,5m2.

Sơ đồ mặt bằng tầng 6 đến 20 căn hộ Galaxy 9
Tầng 6 đến tầng 20: có 14 căn.
- 1 phòng ngủ: 48,7m2; 48,8m2.
- 2 phòng ngủ: 57,2m2; 65,6m2; 67,7m2; 69m2; 70m2.
- 3 phòng ngủ: 87,5m2; 93,5m2.
- Tất cả các căn hộ đều có ban công
Mẫu thiết kế căn hộ Galaxy 9 loại 1 phòng ngủ

Mẫu thiết kế căn hộ Galaxy 9 loại 2 phòng ngủ

Mẫu thiết kế căn hộ Galaxy 9 loại 3 phòng ngủ


Nhận ký gửi mua bán cho thuê căn hộ Galaxy 9
Hotline: 0903 665 877 (Mr Nguyện)
Email: nguyentv.bds@gmail.com